埼玉県さいたま市中央区








































クライアントはその業界においてパイオニア的な存在ながらも、同業他社の増加に伴い、従来の対業界内部からエンドユーザーへの認知拡大へと舵をとりつつあった。今回の計画においても、ほぼ半分に近い面積を自社商品をPRすることができる商談スペースに充てることになっている。そこで我々は、幅広く国道に接する敷地条件を生かし、全体が立体的なショーウィンドウを兼ねるファサードを持つ建物を提案した。
ショーウィンドウであるからして、主役は企業イメージを伝える商品であり、建物は主役を引き立たせる装置である。通りを通る人々に様々な商品ひとつひとつのイメージをアピールするショーウィンドウとなるよう、主張を抑えた白い壁を前面に立て、その壁に単純な四角い窓を切り取り、その窓で商談スペースに並ぶ商品を枠取っている。枠取られることで個々のイメージが際立ち、数々のイメージが次々と現れる。
その際、建物自体への意識は後退していて欲しい。その存在感を消すため、外壁は100mmのH鋼を用いた最小断面の鉄骨構造とし、壁の薄肉化を図った。また、仕上げはフラットなサイディングを塗装しているが、役物や水切りといった当たり前の顔をして付いてくる物たちを極力省略し、最小限の線となるディテールでまとめている。
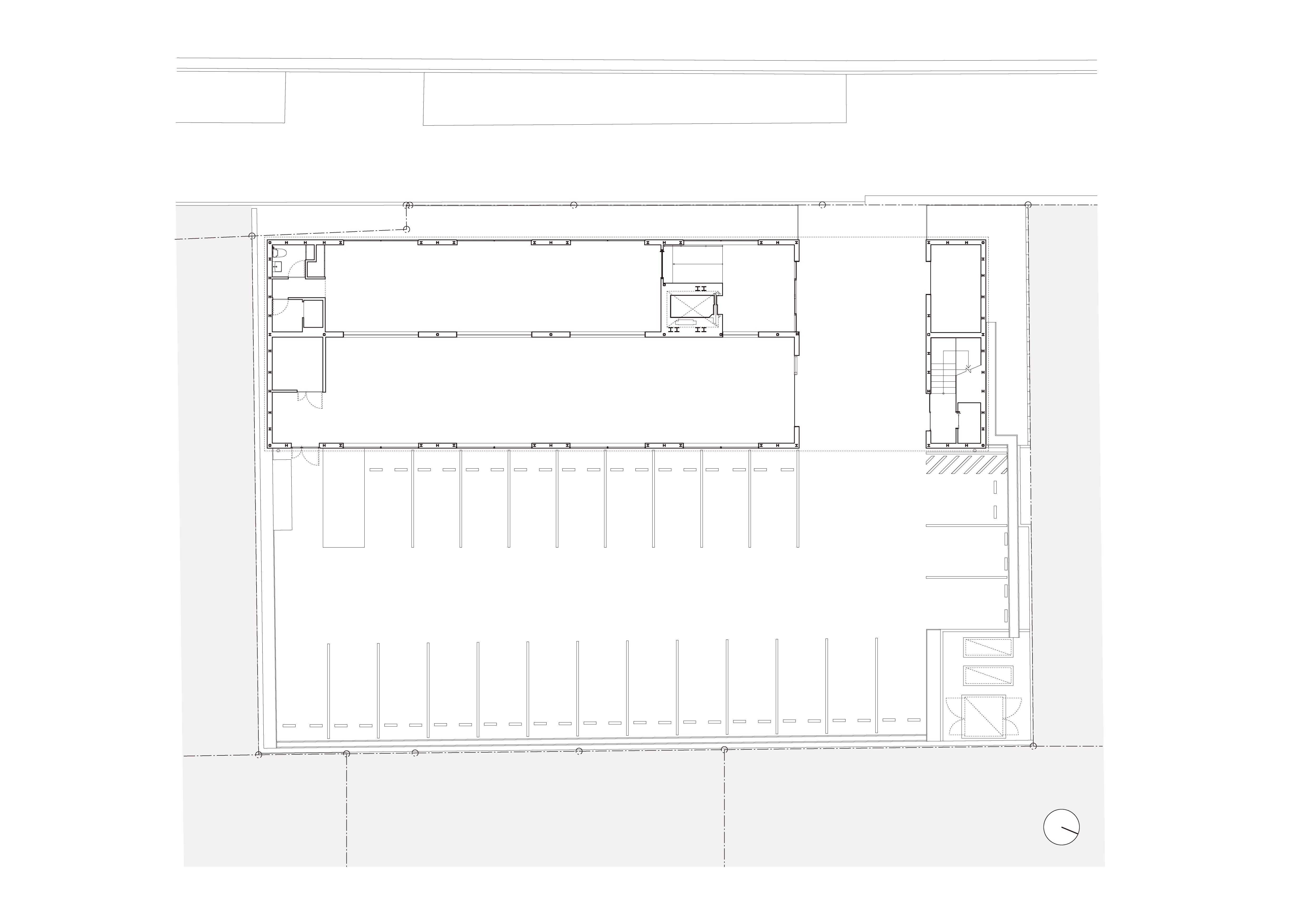
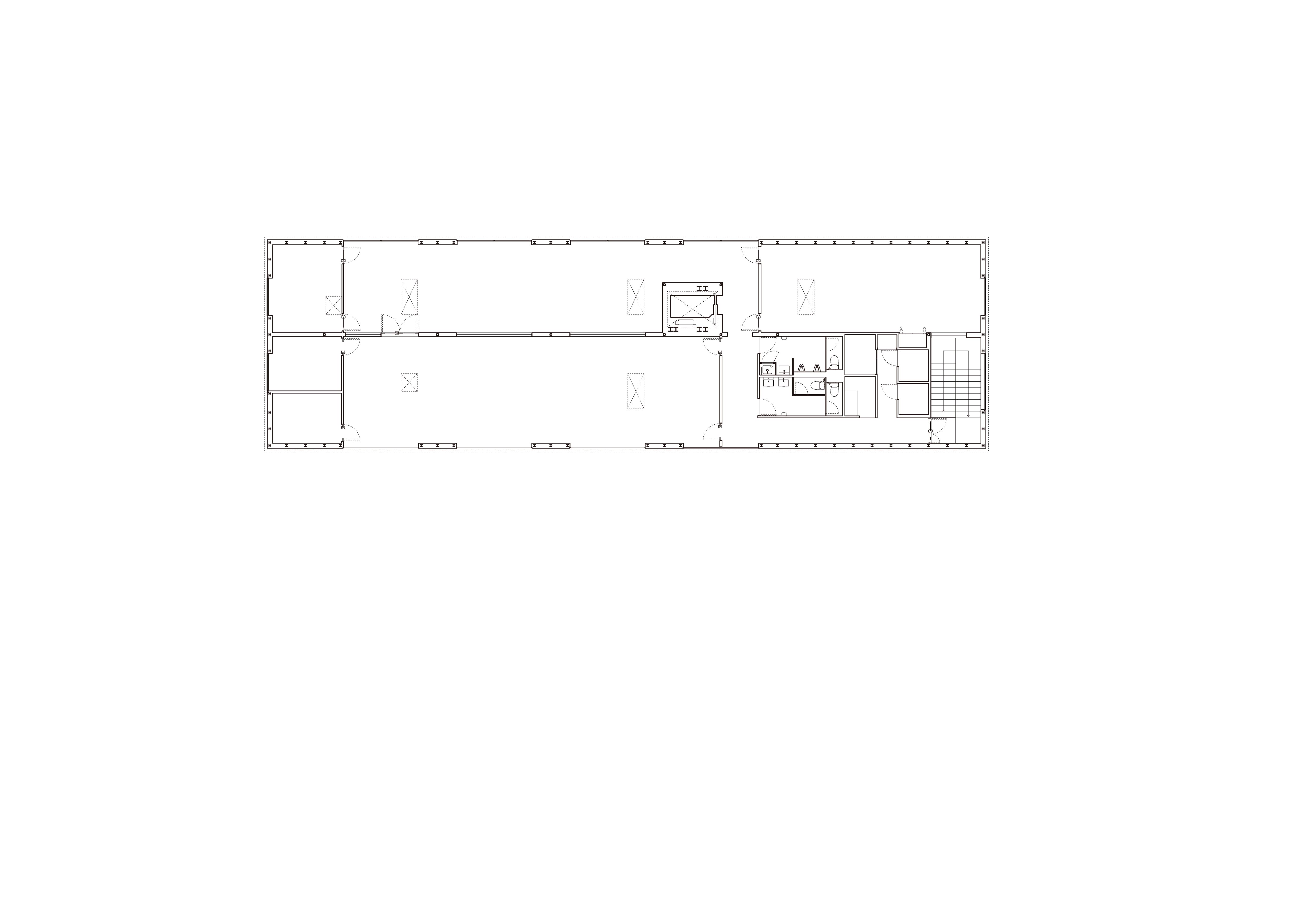
建物は大きく、1階-2階、表-裏、で4等分し、表を上下二層の商談スペース、裏を事務室と倉庫に充てている。表と裏の間にはファサードと同型の窓が開いた壁を設け、表-間-裏と、計3枚の窓が重なる構成としている。これにより、表と裏の公私を適切に分けつつも、全ての室が両面から光を取り入れることができる。結果、照明に頼らない明るいショーウィンドウが出来上がった。
床と屋根は、木梁を鉄骨の壁の間に掛け渡している。軽量な床としてローコストを図りながら、ブレースの無いすっきりとした架構をそのまま天井の仕上げとして、無機質になりがちなオフィス空間に温もりを与えている。建物全体は910mmモジュールで構成し、ベニヤ、サイディング、石膏ボードといった種々の規格材料で無駄を省く。その点では今日の一般的な在来木造に近いオフィス建築であり、ただ、純木造に拘らず適材適所に努める、いわば「木造のような」作り方でコストボリュームを落とす試みである。
夜になると、鉛直面輝度を抑えた外壁は夕闇に朧げに消え、内と外の輝度差によって窓がより浮かび上がる。通行人がはたと自転車を止め見上げたその場所は窓の前であったから、その瞬間は、我々の試みが成功した時でもあった。
| 工事規模 | 敷地面積:-㎡ / 建築面積:342.14㎡ / 延床面積:684.28㎡ |
|---|---|
| 構造 | S造+一部木造・地上2階建て |
| 竣工時期 | 2016年6月 |
| 予算 | -万円 |
| 施工会社 | ユージー技建株式会社 |
| 用途 | オフィス |
| 設計デザイナー | 原田 将史 + 谷口 真依子 |





この記事へのコメントはありません。