東京都江戸川区








































作ることができ、比較的地盤が悪い場所でも杭を必要とせず、鉄骨造ながら基礎工事を 簡略化でき、コスト削減へと繋げている。
C形鋼のみで組みあがった鉄骨フレームに、一定の強度と剛性を持つ床材と外壁材・ 屋根材を躯体に直接留めつけるため、下地は不要となり、きわめて簡便に仕上工事が 完了する。鉄骨フレームについてはあらわしとし、”見せるディテール”を心がけた。 最後に、庇やバルコニー等を施主の要望に合わせてオプションとして用意し、それらを 躯体に直接ボルトやビスで接合していき、結果としてオプションが施主のライフスタ イルを表し、個性として表出した住宅が出来上がっている。
また、本プロジェクトは用途が住宅であるため、建物として技術表現に偏らず、住環境 にも重点を置くように心がけた。
敷地は周りに建物が建つ旗竿敷地。前後は駐車場となっていることから、将来どんな 建物が建つかわからない。そんな場所であるからこそ、どんな条件でもプライバシーを 確保できるよう、周辺環境と内部環境の境界(“ボーダー”)として存在するように した。
また、内部環境においては、プライバシーを確保しつつも光溢れる軽快で心地のよい リビングや休息できる落ち着いた寝室となるように、外周をぐるりとまわるハイサイド ライト・ローサイド・腰壁のバランスを検討し”ボーダー”状に配置している。
なお、本プロジェクトは特殊鉄骨造を数多く手がけてきた鉄骨ファブより依頼を受けて 始まったプロジェクトであり、今後鉄骨ファブと共に「LGS HOUSE」として展開して いく為のプロトタイプとして位置づけられている。
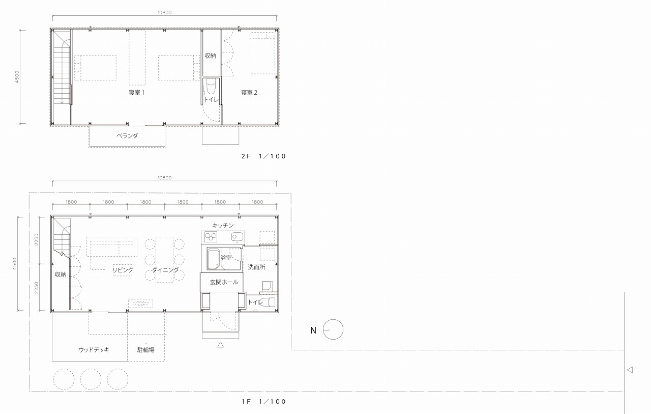
| 工事規模 | 敷地面積:153.35㎡ / 建築面積:52.85㎡ / 延床面積:108.28㎡ |
|---|---|
| 構造 | S造・地上2階建て |
| 竣工時期 | 2014年6月 |
| 予算 | -万円 |
| 施工会社 | 日南鉄構株式会社 |
| 用途 | 住居 |
| 設計デザイナー | 原田 将史 + 谷口 真依子 |






この記事へのコメントはありません。