岡山県瀬戸内市牛窓












































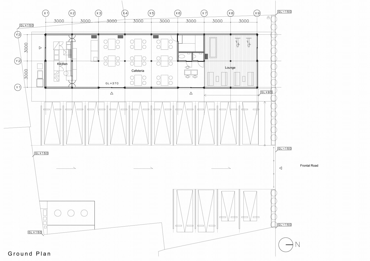
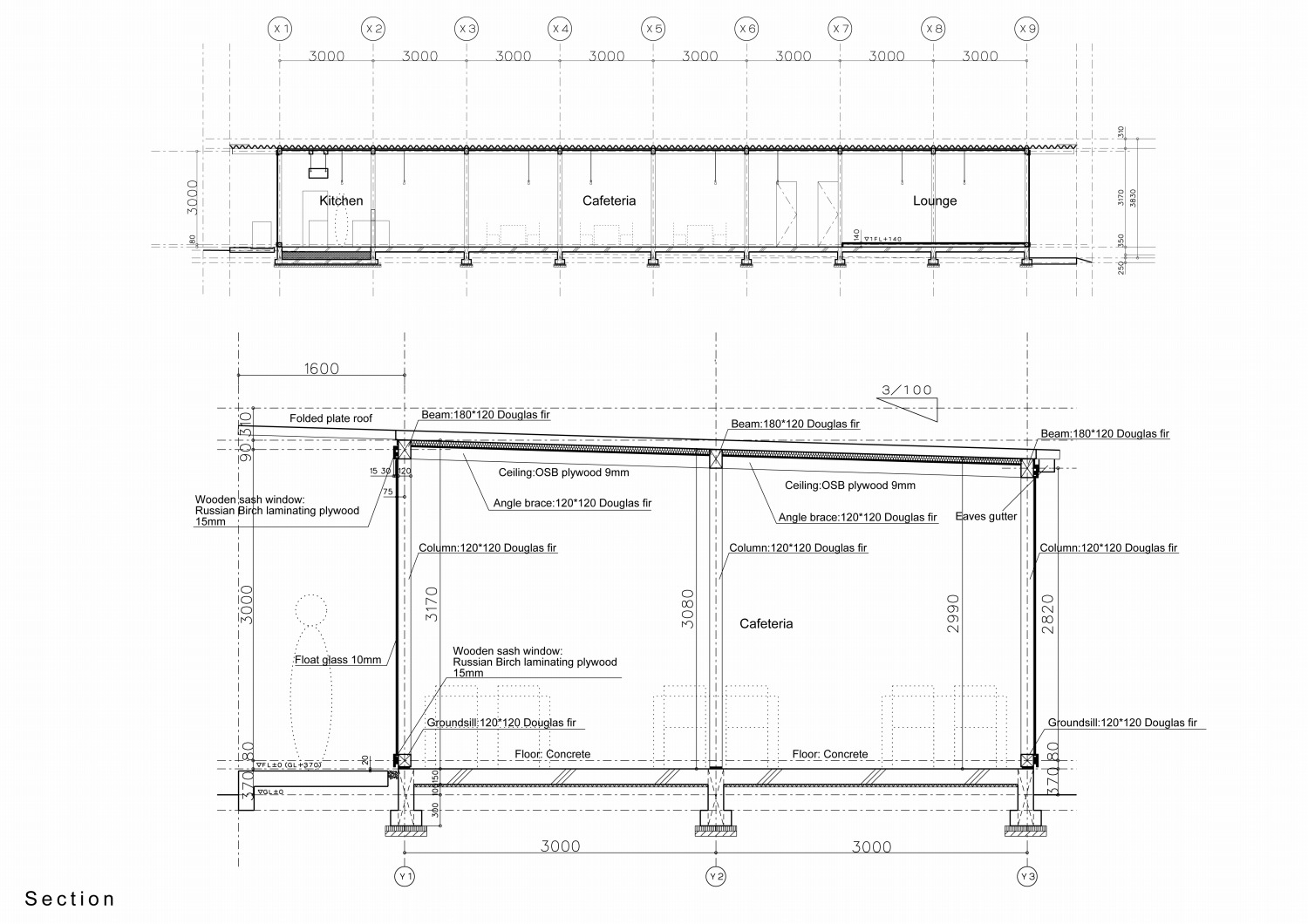
地元の建設会社の社員食堂と地域の方々が利用できる町の食堂を兼ねる。構造や仕上げをシンプルにし、建物の存在は控えめにし、町の食堂としての役割を前面に押し出し、地域の人々に親しまれる食堂となる。120mm×120mmの柱・土台・筋交いと180mm×120mmの梁による3m角を基本とした木造フレームに直接折板屋根を掛け渡し、壁面のガラスは直接躯体に押縁を留め付けて固定し建物が完成している。柱・梁の各接合部には特殊な金物は一切使用せず、ボルトとナットのみで接合されている。透明性の高い建物は、明るく開放的かつ人々を誘う食堂となる。この構法は他の用途にも適用可能であり、様々な展開への可能性を秘める新しい木造プレハブ構法のプロトタイプとなる。
| 工事規模 | 敷地面積:-㎡ / 建築面積:166.32㎡ / 延床面積:144.00㎡ |
|---|---|
| 構造 | 木造・地上1階建て |
| 竣工時期 | 2013年4月 |
| 予算 | -万円 |
| 施工会社 | ユージー技建株式会社 |
| 用途 | 飲食店 |
| 設計デザイナー | 原田 将史 + 谷口 真依子 |






この記事へのコメントはありません。